您好!欢迎光临!主营产品:压力仪表等

D505/7D-0806600压力控制器-上海远东仪表厂

D505压力控制器简介上海远东仪表厂生产的D505系列压力控制器采用无泄漏活塞式的传感器,控制灵敏度高。可用于含油雾的压宿空气及其它对压力传感器材料无腐蚀作用的含油雾气体和液压油,水油乳蚀液及润滑性
添加时间: 2025-05-26 07:18:28
  • 电 话:021-5662 9198
  • 邮 箱:shziyigf@163.com
D505-7D-0806600.png
介绍

D505-7D-0806600.png

D505压力控制器简介

上海远东仪表厂生产的D505系列压力控制器采用无泄漏活塞式的传感器,控制灵敏度高。可用于含油雾的压宿空气及其它对压力传感器材料无腐蚀作用的含油雾气体和液压油,水油乳蚀液及润滑性能良好的中性液体介质。控制器的设定值可调,调节范围0.3……23Mpa。

主要技术性能

用于含油雾的中性气体

◆工作粘度:<1×10-3m2/s

◆开关元件:微动开关

◆外壳防护等级:带槽密封圈IP54,O型密封圈IP65(符合DIN40050与GB4208中IP65相当)

◆环境温度:-5~40℃

◆介质温度:0~100℃

◆安装位置:压力接口垂直向下(允许倾斜15°)

◆抗振性能:D504/7D:40m/s2 504/7DK:20m/s2

◆重复性误差:≤2.5%

◆触点容量:AC220V 6A(阻性)若有特殊要求订货时需指出

工作原理

当工作介质(空气或中性气体,水,液压油,润滑油等)的压力作用在不同的传感压力元器件(膜片、波纹管、活塞)上,通过传感压力元器件产生形变量来反映工作介质的压力大小,并通过栏杆弹簧等机械机构,***终触发或启动控制器内部的微动开关,同时输出检测信号或控制信号。

使用选型

◆D505/7D切换差不可调压力控制器



◆D505/7D切换差可调压力控制器



◆D505/7DK小切换差不可调压力控制器



注:*在实际工作中,即使短暂的压力峰值也不能超过此值;**带槽密封圈型在使用中应避免压力的突然波动,若要有压力的突然波动,则要在控制器的接口上,安装一个压力冲击阻尼器。

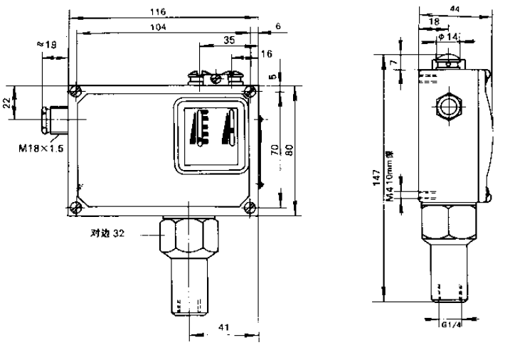
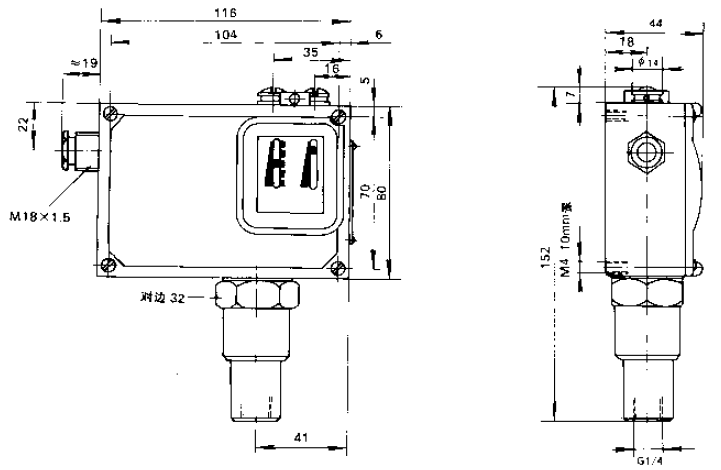
安装图片

◆外形及安装尺寸,图号(01)


◆外形及安装尺寸,图号(02)


浏览:
返回顶部